Archi Jeunes 1
2021

Living, tomorrow.

Beyond the health and economic disruption it has caused, the COVID crisis has changed our perception of many aspects of collective and individual life. It will have a long-term impact on our behaviors, especially those related to how we live.
Jury
Jury
Denis Valode & Jean Pistre
architects
Najoua Arduini
development director at Nexity
Adrick Beckman
architect
Nicolas Bouzou
economist, founder and director of Asterès
Thomas Coldefy
architect
Marie Godard Le Beux
general manager of Paris Habitat
Gaëlle Hamonic
architect
Guillaume Poitrinal
chairman of Woodeum and the Heritage Foundation
Catherine Sabbah
General manager of IDHEAL (Institute for Advanced Studies in Housing Action)
Alongside this crisis, awareness of the effects of climate change and planetary pollution due to human activities is increasingly widely shared among the population.

One consequence of this pandemic must be the imperative consideration, in the design of housing, of new health, social, and environmental expectations, which have been strongly highlighted during this crisis. Architects Denis Valode and Jean Pistre believe it is necessary and useful to open the debate to a new generation of architects, to envision new forms of living spaces. Aware also of the professional integration difficulties faced by this young generation, directly impacted by the effects of the health crisis (almost no internships, distance learning, etc.), they wish to actively support the talents of tomorrow.

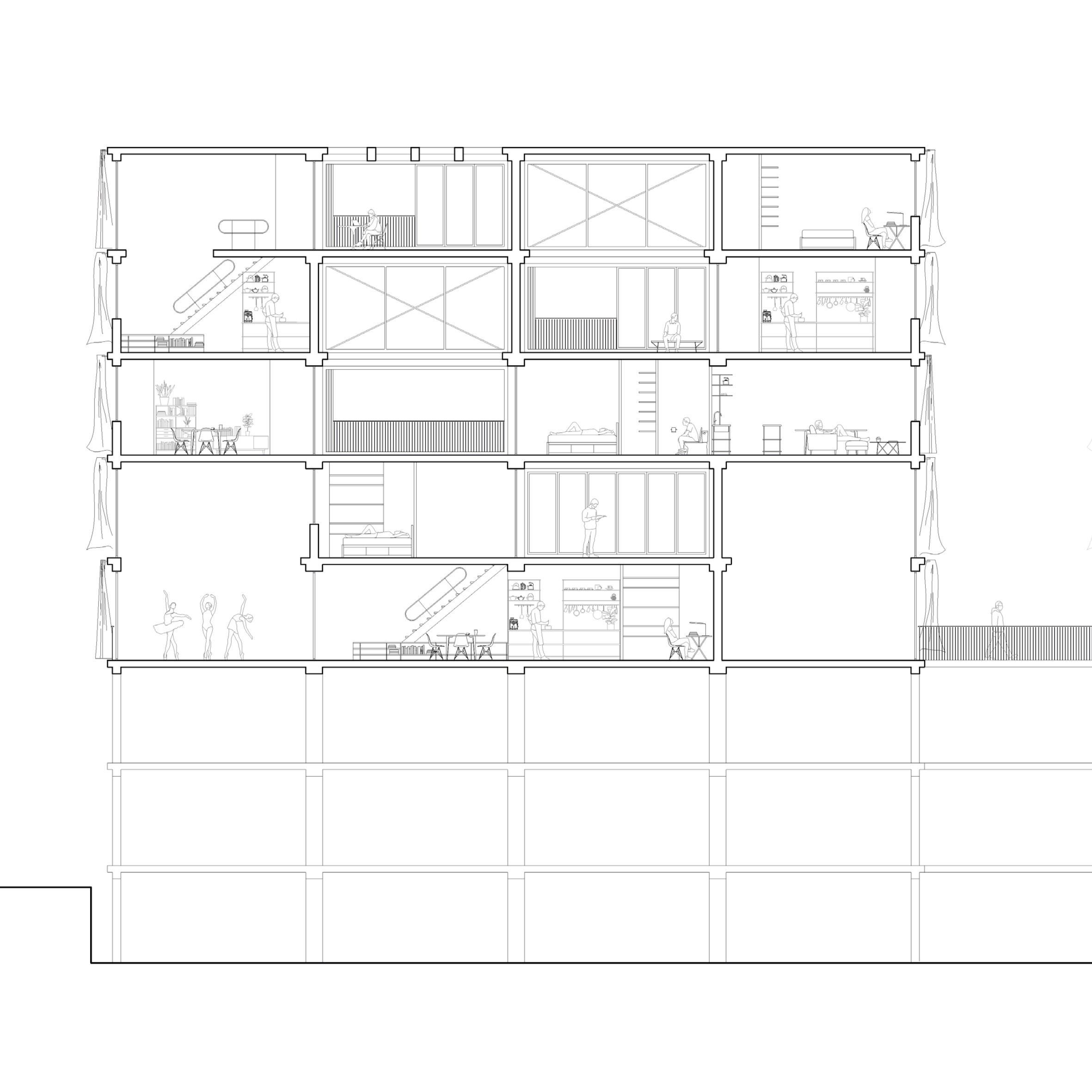
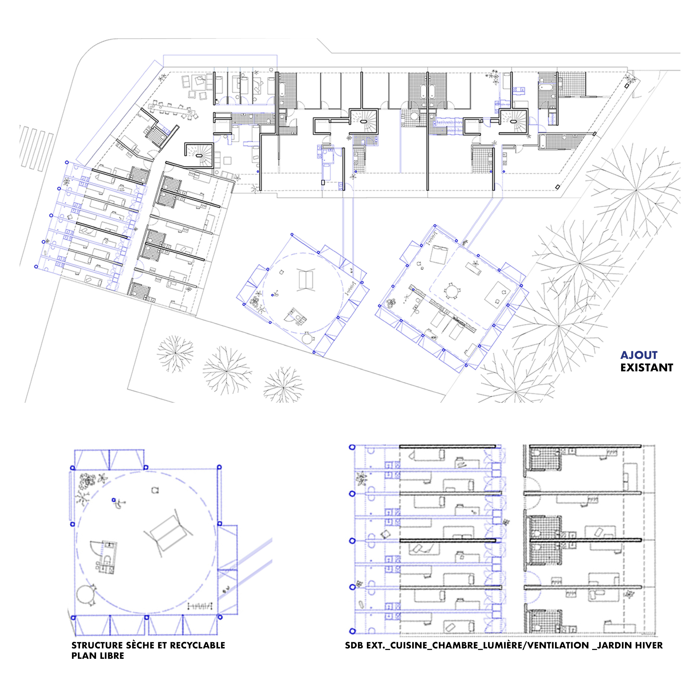
The architectural project expected is a proposal for innovative collective housing that addresses the observed inadequacies of dwellings and their environments, as well as the aspirations that emerged during the COVID crisis and lockdown in particular: contradictions between professional, school, and family life; between collective living and social distancing; between confinement and the desire for contact with natural elements and vegetation, as well as the spread of ecological concerns.
The context, location, urban characteristics (density, dimensions, etc.), and the choice between rehabilitation or new construction are left to the candidates' discretion.
01/07
02/07
03/07
04/07
05/07
06/07
07/07
01/07
02/07
03/07
04/07
05/07
06/07
07/07
01/07
02/07
03/07
04/07
05/07
06/07
07/07
01/07
02/07
03/07
04/07
05/07
06/07
07/07
01/07
02/07
03/07
04/07
05/07
06/07
07/07